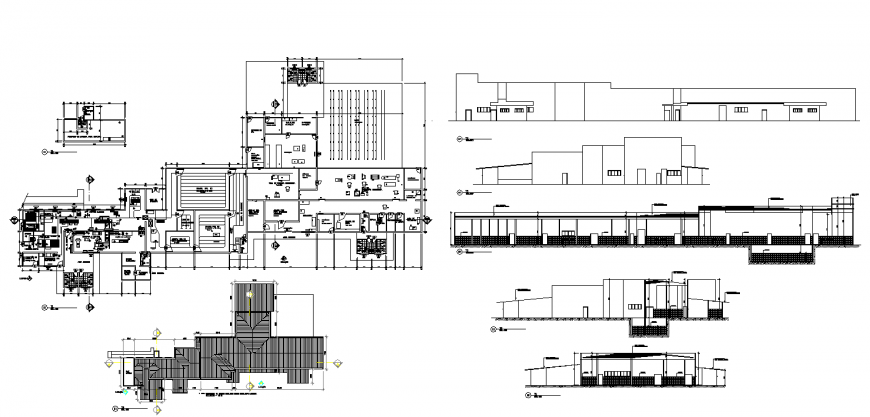
Detail commercial building structure 2d view elevation and plan layout file
Description
Detail commercial building structure 2d view elevation and plan layout file, plan view detail, wall and flooring detail, dimension detail, roof structure detail, dimension detail, hidden line detail, hatching detail, door and window detail, furniture detail, floor leveling detail, front elevation detail, column detail, rear elevation detail, side elevation detail, section line detail, scale detail, top elevation detail, ground level detail, etc.
Uploaded by:
Eiz
Luna

